Home
Work
About Us
Contact
Home
Work
About Us
Contact
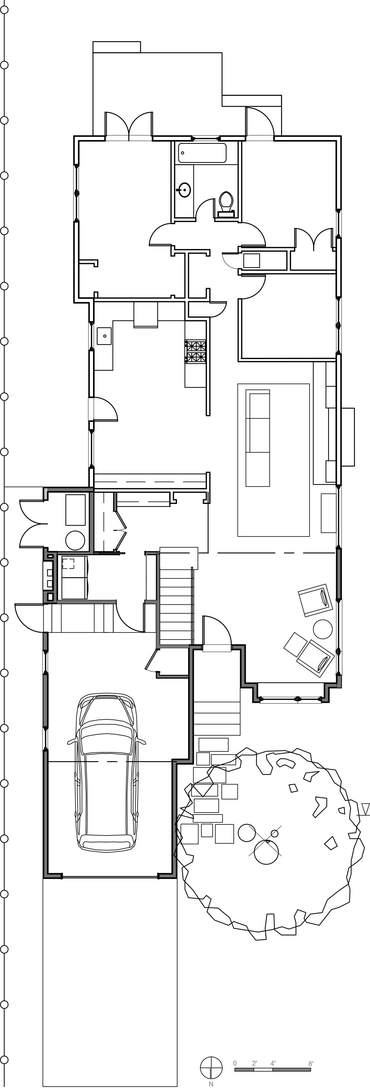
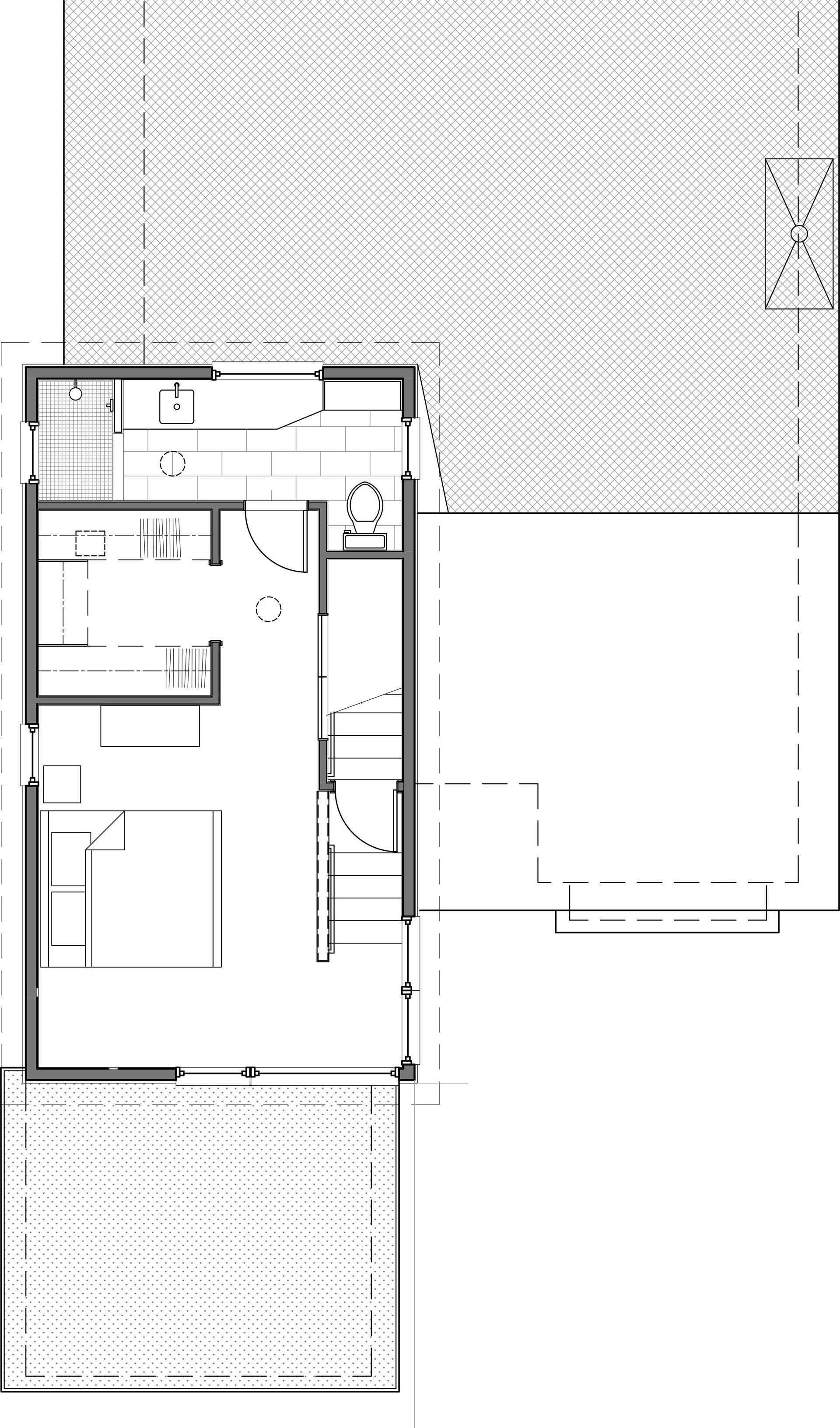
Tulley Residence Addition
Residence. Pacific Grove, CA. 2022
Before
After
First Floor.
Second Floor.
↑
Back to Top